
Введение: Экзистенциальный выбор между Вечностью и Эстетикой

В тот момент, когда человек сталкивается с необходимостью выбрать памятник, он оказывается на пересечении глубочайших эмоциональных переживаний и сурового материального прагматизма.
Это решение принимается не для себя, а для Другого - для сохранения памяти о близком человеке перед лицом неумолимого времени. В этом контексте вопрос "что лучше: гранит или мрамор?" трансформируется в поиск баланса между желанием выразить любовь через утонченную красоту и стремлением защитить эту память от разрушительного воздействия веков.
Как эксперт в области ритуальной архитектуры, я понимаю, что за выбором стоит серьезный аналитический этап. Для принятия верного решения часто требуется профессиональная консультация по подбору материалов и дизайна памятника.
Данный материал представляет собой исследование, которое поможет вам понять, во что превратится выбранный символ памяти через десятилетия.
Сравнение характеристик: Гранит или Мрамор
Для объективной оценки свойств камня ниже приведено подробное сравнение характеристик основных пород. Чтобы лучше понять структуру мемориала, рекомендуем изучить полный гид по всем элементам мемориального комплекса.
| Характеристика | Гранит (Габбро-диабаз) | Мрамор (Коелга/Уфалей) | Влияние на памятник |
| Геологический тип | Магматическая порода | Метаморфическая порода | Определяет внутреннюю плотность. |
| Минеральная основа | Кварц, шпаты, слюда | Кальцит, доломит | Гранит тверже; мрамор пластичнее. |
| Прочность на сжатие | Высокая | Средняя | Влияет на устойчивость стелы. |
| Водопоглощение | Низкое (0.01-0.15%) | Среднее (0.1% - 0.8%) | Определяет морозостойкость. |
| Срок службы | Более 150 лет | 50 - 100 лет | Долговечность мемориала. |
| Уход | Минимальный | Регулярный | Защита от внешних воздействий. |
| Портрет и надписи | Четкая гравировка | Вставки или фотокерамика | Сохранность изображения. |
Гравировка и художественное оформление: Контраст против Пластики
Выбор технологии нанесения изображения напрямую зависит от структуры камня. Художественное оформление памятника имеет свой "эстетический язык" для каждого материала.
Гранит: Идеал для портретной точности
Памятник из гранита, особенно из черных сортов, является лидером для классической гравировки.



Высокий контраст: Гравировка фото на памятник на черном граните позволяет передавать полутона с фотографической точностью. Чтобы результат был идеальным, обязательна качественная ретушь фотографий на памятник.

Детализация: Твердость камня позволяет художнику воплощать сложные образы, а гравировка на памятник: полное руководство поможет вам выбрать подходящий стиль.
Мрамор: Особенности передачи образа



На мраморе гравированный портрет практически не виден из-за отсутствия контраста.
Альтернативные решения: Для мраморных стел часто используется вставка из черного гранита с портретом, а также современные методы: фото на памятник на стекле или фото на керамике.

Скульптурные возможности: Мрамор позволяет создавать тончайшие детали. В ритуальной сфере также популярны скульптуры из литьевого мрамора на могилу, которые подчеркивают пластику материала.
Геологический генезис: ДНК памятника
Гранит: Рожденный в магматическом горниле
Кварц обеспечивает исключительную прочность гранита. В ритуальной сфере часто обсуждаются отличия габбро-диабаза и гранита: габбро плотнее и лучше подходит для глубокой гравировки портретов.

Мрамор: Метаморфоза морского дна
Мрамор имеет более "живую" природу. Его светопроницаемость создает уникальный оптический эффект, но пористость делает его уязвимым.

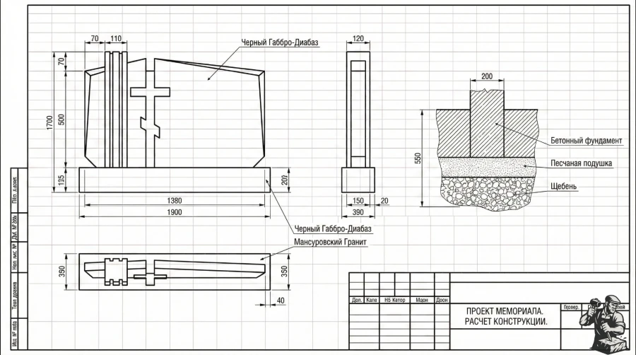
Инженерный анализ: Физико-механические свойства

Инженерный анализ при создании мемориала - это гарантия того, что памятник не покосится и не разрушится под воздействием внешней среды в течение десятилетий. Учитывая средний вес стелы в 120-130 кг (а вместе с тумбой и цветником - до 250-300 кг), критическое значение имеет расчет нагрузки на грунт.

Выбор фундамента для максимальной надежности
Выбор типа основания зависит не только от веса конструкции, но и от типа почвы и времени, прошедшего с момента захоронения (рекомендуется установка не ранее чем через 12 месяцев).

| Тип фундамента | Когда выбирать | Особенности конструкции |
| Балки (перемычки) | Песчаные, стабильные почвы. | Железобетонные балки укладываются поперек могилы с опорой на "материковый" (некопаный) грунт. |
| Монолитная плита | Пучинистые, глинистые, мягкие почвы. | Армированный бетонный слой по всей площади участка. Исключает перекос отдельных элементов. |
| Свайно-ленточный | Участки с уклоном или высоким уровнем вод. | Бурятся сваи ниже уровня промерзания почвы, сверху связываются бетонной лентой. |
| Бессер-блоки | Для создания высокого цоколя. |
Вибропрессованные блоки, обладающие высокой прочностью и эстетичным видом без доп. отделки. |

Сравнение физико-механических свойств
Для долговечности мемориала важны показатели плотности и коэффициента водопоглощения.
| Характеристика | Гранит (Габбро-диабаз) | Мрамор (Коелга и др.) |
| Плотность | 2800–3000\, кг/м^3 |
2600–2800\, кг/м^3 |
| Водопоглощение | < 0.1\% (экстремально низкое) | 0.15–0.50\% (среднее) |
| Морозостойкость | 100–300 циклов | 50–100 циклов |
| Твердость (Моос) | 6–7 (высокая) | 3–4 (средняя) |
Особенность: имеет пористую структуру, из-за чего впитывает влагу и микрочастицы пыли.
Уход: требует обязательной гидрофобизации (покрытие "Антидождь").
Защитное покрытие "Антидождь"

Это специальный гидрофобный состав на основе акрила и воска. Он создает на поверхности камня (особенно в местах гравировки) невидимую пленку, которая:
Предотвращает потемнение портрета и надписей во время дождя.
- Защищает от микротрещин: вода не попадает в поры, а значит, не расширяет их при замерзании.
- Облегчает уход: грязь и пыль не въедаются в структуру камня и легко смываются водой.
- Важно: Согласно ГОСТ Р 59404-2021, установка должна производиться строго по уровню с использованием цементных растворов или специальных клеев, устойчивых к перепадам температур от -50°C до +50°C.
Эстетика и Дизайн: Художественные возможности

Профессиональный дизайн памятников - это не просто выбор формы, а создание визуального образа памяти. Использование современных инструментов на этапе проектирования позволяет избежать ошибок и увидеть результат еще до начала работ по камню.
Эстетика и дизайн: Инструменты проектирования

Для создания уникального мемориального комплекса используются следующие этапы визуализации:
Эскиз памятника (2D-графика): Используется для первичного согласования концепции. На этом этапе определяется общая стилистика, пропорции и взаимное расположение элементов (стелы, тумбы, цветника). Эскиз помогает быстро "примерить" разные варианты художественной резки и выбрать направление дизайна.

3D-визуализация и моделирование: Создание цифровой копии будущего мемориала в высоком разрешении.

Это позволяет:
- Осмотреть комплекс со всех сторон: Увидеть толщину плит, фаски и декоративные элементы в объеме.
- Оценить текстуру камня: Программа имитирует реальный блеск полированного гранита или матовость мрамора, позволяя увидеть, как будут сочетаться разные сорта камня.
- Работа со светом и тенями: Вы увидите, как памятник будет выглядеть при разном освещении.
- Интеграция в ландшафт: Визуализация позволяет "вписать" памятник в конкретный размер участка, учитывая ограду, мощение плиткой или установку скамьи.
- Фотореалистичный монтаж (Коллаж): Наложение макета памятника на реальную фотографию места захоронения. Это помогает понять, как мемориал будет гармонировать с соседними участками и общим окружением кладбища.
- Типографика и гравировка: Подбор шрифтов (от строгой классики до старославянской вязи) и предварительное размещение портрета и эпитафии. Это гарантирует, что надписи будут читаемыми, а композиция - уравновешенной.
Почему это важно?

Проектирование позволяет не только увидеть эстетическую сторону, но и произвести точный технический расчет. Это исключает риск того, что готовое изделие будет выглядеть иначе, чем вы себе представляли, и дает уверенность в долговечности конструкции.
Совет эксперта: При работе с 3D-моделью обратите внимание на сочетание контрастных материалов (например, черного габбро-диабаза и светлого мансуровского гранита) - это один из самых актуальных трендов в современном мемориальном дизайне.
Эксплуатация и Уход: Реальная цена владения

При выборе материала важно смотреть не только на дату установки, но и на десятилетия вперед. Гранит - это стратегия "поставил и забыл", которая избавляет от лишних тревог. Этот камень обладает высокой плотностью и химической инертностью. Он не впитывает жир, кислоты или органические красители. Если со временем зеркальный блеск немного потускнеет из-за пыли, можно узнать, как отполировать гранитный памятник своими руками, используя простую технологию и мягкие абразивы.

Мрамор же требует гораздо больше внимания и дисциплины. Из-за своей пористой структуры он моментально впитывает влагу и грязь. Для сохранения эстетики крайне важно знать, чем отмыть мраморный памятник, чтобы избежать глубоких пятен и постепенного разрушения камня. В целом, глубокое понимание того, как ухаживать за могилой на кладбище, поможет сохранить мемориал в первозданном виде на долгие годы.
Мнение эксперта: Марк Каменев"Многие мои клиенты совершают распространенную ошибку, которую легко избежать: они выбирают белый мрамор для установки под густыми кронами деревьев. Органические пятна от почек, листвы и птиц проникают в поры камня настолько глубоко, что обычная мойка уже не помогает. В таких случаях эксплуатация превращается в бесконечную борьбу за чистоту. Если вы цените свое время и спокойствие, выбирайте гранит. Он прощает отсутствие ухода, тогда как мрамор требует регулярной заботы и защиты".
Пошаговая инструкция по очистке мрамора
- Удалите сухой щеткой или ветошью песок и пыль с поверхности мемориала.
- Обильно промойте камень чистой водой без использования бытовой химии.
- Используйте специальные PH-нейтральные составы для удаления жирных или органических следов.
Экономический анализ: Что реально дороже и лучше?
Мрамор часто привлекает низкой ценой на простые стелы. Это объясняется мягкостью породы и легкостью ее добычи. Однако первоначальная экономия может быть обманчивой. Если рассматривать гранит в долгосрочной перспективе, оказывается выгоднее, за счет отсутствия затрат на реставрацию.
Гранитный материал дороже из-за своей твердости, так как требует мощного оборудования и алмазного инструмента для обработки. Но этот камень обладает стратегией "поставил и забыл". Он не требует частого обслуживания, не впитывает жир и кислоты, сохраняя зеркальный блеск десятилетиями.
Владение мраморным памятником - это ответственность. Без регулярного покрытия защитными составами через 20 лет камень становится серым и шершавым. Также стоит учитывать скрытые расходы: для качественного портрета на мраморе обязательны вставки из черного гранита или фотокерамика, что выравнивает итоговую цену со стоимостью цельной гранитной стелы.
Мнение эксперта: Марк Каменев
"Распространенная ошибка - смотреть только на ценник в момент покупки. Мрамор - живой материал, он требует ежегодной заботы. Если сложить стоимость защитных средств и услуг по очистке за 50 лет, гранитный памятник из габбро-диабаза обойдется в два-три раза дешевле. Гранит неизменен и хранит память веками, что делает его лучшим выбором для тех, кто ищет надежность.

Для тех, кто ограничен в средствах сегодня, консультация по подбору материалов и дизайна памятника поможет найти компромиссное решение без потери долговечности мемориала
Итоговые рекомендации и Профили выбора

- Профиль "Прагматик": Рекомендуется черный гранит. Поможет определиться наше полное пошаговое руководство: как выбрать памятник.
- Профиль "Эстет": Создание светлого образа из мрамора.
- Профиль "Компромисс": Комбинированные мемориалы из разных видов камня.
Часто задаваемые вопросы
Вопрос: Правда ли, что мрамор со временем "рассыпается"?
Ответ: Мрамор не рассыпается мгновенно, но из-за высокой пористости он подвержен эффекту "сахарности". Вода проникает в поры, замерзает и постепенно разрушает связи между кристаллами кальцита ($CaCO_3$). Без регулярной гидрофобизации (используя покрытие антидождь для памятников) срок его декоративной службы составляет 50-100 лет, в то время как гранит стоит более 150 лет.
Вопрос: Можно ли сделать качественный портрет на мраморе?
Ответ: Прямая гравировка на светлом мраморе будет практически невидимой, так как скол камня совпадает по цвету с его поверхностью. Для решения этой проблемы мы рекомендуем использовать вставку из черного гранита с портретом или фото на керамике на памятник, которые обеспечат необходимый контраст и долговечность изображения.
Вопрос: Какой камень меньше нагревается на солнце?
Ответ: Светлый мрамор нагревается значительно меньше, чем темный гранит. Это свойство, наряду с его "теплым" визуальным восприятием, часто делает его предпочтительным для мемориалов в южных регионах, хотя плотность гранита все равно делает его более устойчивым к термическим деформациям.
Вопрос: Что делать, если на мраморе появились темные пятна или мох?
Ответ: Мрамор - метаморфическая порода, его поры являются идеальной средой для биокоррозии. Если это произошло, важно знать, чем отмыть мраморный памятник, не повредив его структуру кислотами. В отличие от него, гранит (особенно габбро-диабаз) практически не требует биоцидной очистки.
Вопрос: Можно ли комбинировать эти материалы в одном проекте?
Ответ: Да, это отличное решение. Профессиональный дизайн памятников и надгробий часто предполагает сочетание гранитной стелы (для долговечного портрета) и мраморных скульптурных элементов. Такой эскиз памятника на могилу позволяет объединить вечность гранита и пластику мрамора.
Заключение

Выбор между гранитом и мрамором - это выбор между вечностью и утонченностью. Гранит хранит память веками без лишних хлопот, тогда как мрамор требует заботы. Для создания гармоничного места захоронения также стоит продумать ландшафтный дизайн могилы и общее благоустройство могилы на кладбище.
Приложение: Не забудьте уточнить название месторождения. Для долговечности надписей может успешно применяться пескоструйный метод обработки текста. Также стоит заранее изучить правила и традиции посещения кладбища на Радоницу для правильного ухода за местом памяти.





